Van Helsing Season 1 + 2

I had the opportunity of work for Nomadic Pictures ( Chad Oakes, Mike Frislev ) on Van Helsing season 1 + 2, 26 episodes, and it was a fun ride. Great well crafted stories from Showrunner/EP/Writer  Neil LaBute’s world and the writers room, we got to build a post apocalyptic world of survivors and a dark society of Vampires.. Really fun and goes with my love of doing “Horribly Beautiful”. With a remarkable cast, great directors, amazing DP Brendan Uegama, PM Chris Rudolph, and a dedicated crew of professionals .. we knocked it out of the park.. and the new season’s still are ..


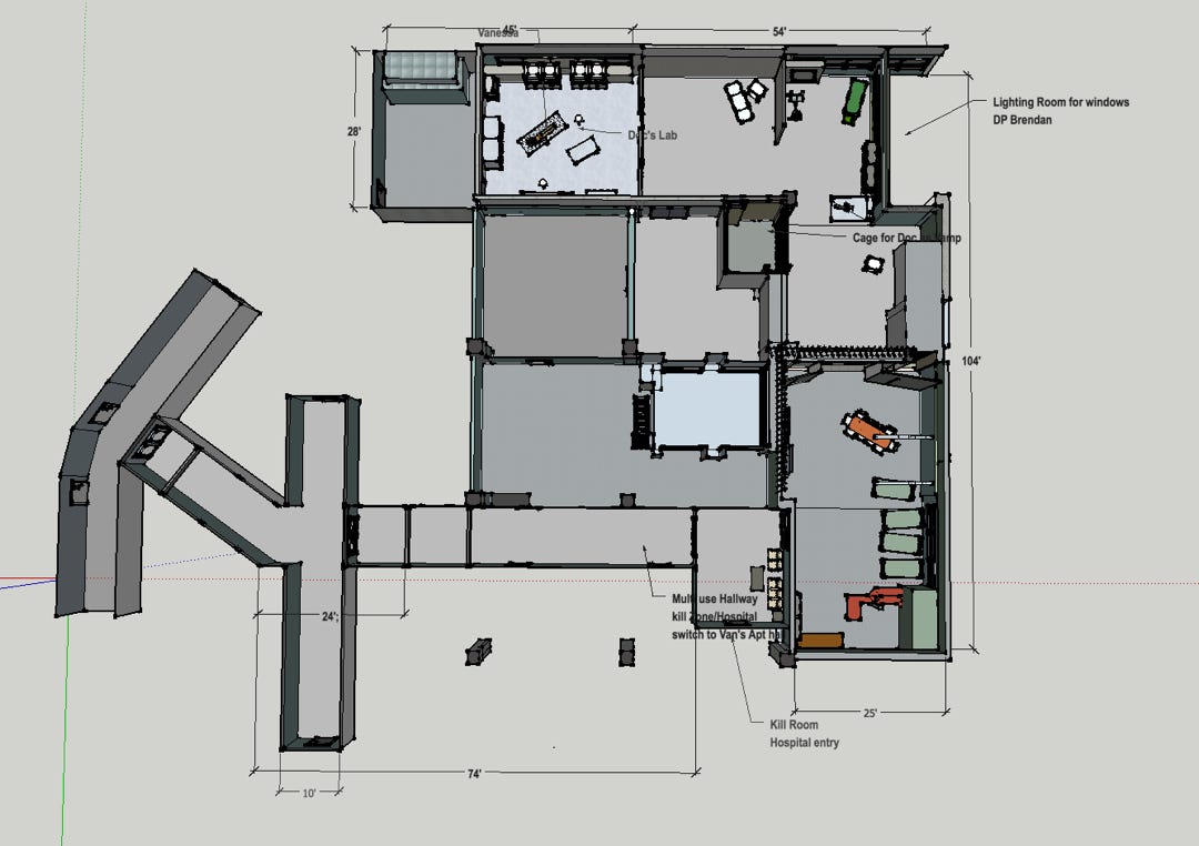
We had the amazing studio space in the empty Georgia Postal Building, an incredible space to use as a Vampire’s playground. My teams and I repurposed the 3rd floor to be the hospital both pre and post apocalypse.. It was a very big set but we shot the hell out of it and it looked and functioned great…..

My crews for this  project were …

Art Director Carla Miranda, who I don’t want to work without !!

Construction Baron Shaver and Cam Boon Painter , same they are the best.

Season 1 Set Dec Jen Kom-Tong , she with her crews did a monumental job, and were fully invested in creating the look. Season 2 Set Dec Josh Plaw took it from season 1 and made the look his own, great job him and his crew.

Wardrobe Farnaz Khaki-Sadigh who made the amazing look of the show characters… She and her fine folks worked tirelessly to keep up with the many characters, and aged and battle worn changes of wardrobe .. amazing ..

Props Master Noni Peck Season 1 and Andrew Watling Season 2 did amazing work developing weapons and gadgets to build the story we were telling .

Greens Travis Brooks and crew were basically heroic in the scale of greens needed to show the post apocalyptic world, both urban and rural …

One of the Ancient Ones … the first vampire, still encased in limestone, waiting to be awakened … another Baron and Cam brilliant fabrication

We all built dozens and dozens of sets, both big and small. Weapons, vehicles, luddite machinery, cannibal cop vampire grills, traps for crushing people, blood jacuzzis, collapsing walls and halls, internment camps, hidden survivor enclaves, flayed flesh village, religious havens, gothic high vampire chambers etc, etc … Too much to show, but wonderful madness to do …

Wonderful Wanda,  the Apocalyptic crash ambulance and crazy “Mad Max inspired” chaos vehicle…